Belangrijkste kenmerken
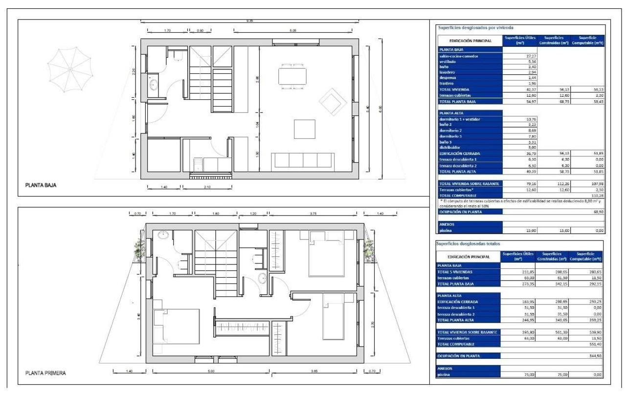
- 3 slaapkamers
- 3 badkamers
- 143 m2 bewoonbare oppervlakte
- 300 m2 perceel
- Zwembad: Ja
Beschrijving
Moderne nieuwbouwwilla’s in Finestrat met privézwembad nabij Benidorm Toplocatie in Finestrat – Costa Blanca Ontdek dit exclusieve project van slechts 5 moderne villa’s in Finestrat, een van de meest gewilde woonwijken aan de Costa Blanca. Deze woningen liggen op een perfecte locatie tussen het charmante dorpje Finestrat en de bruisende stad Benidorm, en bieden een rustige omgeving midden in de natuur, terwijl alle voorzieningen toch dichtbij zijn. De omgeving staat bekend om het prachtige uitzicht op de Middellandse Zee en de omliggende bergen, evenals de nabijheid van golfbanen, winkelcentra en recreatieve voorzieningen. Finestrat combineert traditionele Spaanse charme met moderne infrastructuur, waardoor het ideaal is voor zowel permanente bewoning als vakantiehuizen. De verhoogde ligging zorgt voor een weids uitzicht en een gevoel van privacy, terwijl de kust op slechts een klein eindje rijden ligt. Eigentijdse villa’s ontworpen voor comfort en stijl Deze elegante villa’s hebben een modern, minimalistisch ontwerp met strakke lijnen, grote panoramische ramen en ruime privéterras. Elke woning is verdeeld over twee verdiepingen en beschikt over 3 slaapkamers en 3 badkamers, waaronder een hoofdslaapkamer met inloopkast en toegang tot een privéterras. Een extra kleedkamer biedt extra gemak en opbergruimte. De open indeling versterkt het natuurlijke licht en creëert een naadloze verbinding tussen de binnen- en buitenruimtes, perfect om het hele jaar door te genieten van de mediterrane levensstijl. Privébuitenruimtes en hoogwaardige voorzieningen Elke villa staat op een aangelegd privéterrein en beschikt over een privézwembad, ideaal om te ontspannen en gasten te ontvangen. De woningen bieden ook een eigen parkeerplaats voor twee auto’s op het terrein. Hoogwaardige afwerkingen en moderne installaties zorgen voor maximaal comfort en energie-efficiëntie. Tot de voorzieningen behoren aerothermische warmwatersystemen, split-airconditioningunits met individuele regeling in elke kamer, en designverlichting voor binnen en buiten. De keuken is volledig ingericht en uitgerust met een keramische kookplaat, afzuigkap en oven. Energiezuinige woningen met moderne technologie Deze villa’s zijn gebouwd met hoogwaardige materialen en hebben energielabel A. Ze zijn ontworpen om het energieverbruik te verminderen met behoud van een hoog comfortniveau. De combinatie van isolatie, efficiënte systemen en hoogwaardige bouw zorgt voor een duurzame en kosteneffectieve woning. Uitstekende bereikbaarheid en bezienswaardigheden in de buurt Stranden van Benidorm 5 km Dorp Finestrat 3 km Puig Campana Golf 2 km Winkelcentrum La Marina 4 km Haven van Benidorm 6 km Luchthaven Alicante 55 km Uw ideale mediterrane woning wacht op u Of u nu op zoek bent naar een stijlvolle permanente woning, een vakantieverblijf of een slimme investering, deze moderne villa’s in Finestrat bieden locatie, kwaliteit en levensstijl in één pakket. Neem vandaag nog contact met ons op voor meer informatie of om een bezichtiging te regelen en uw nieuwe woning aan de Costa Blanca te bemachtigen.






















