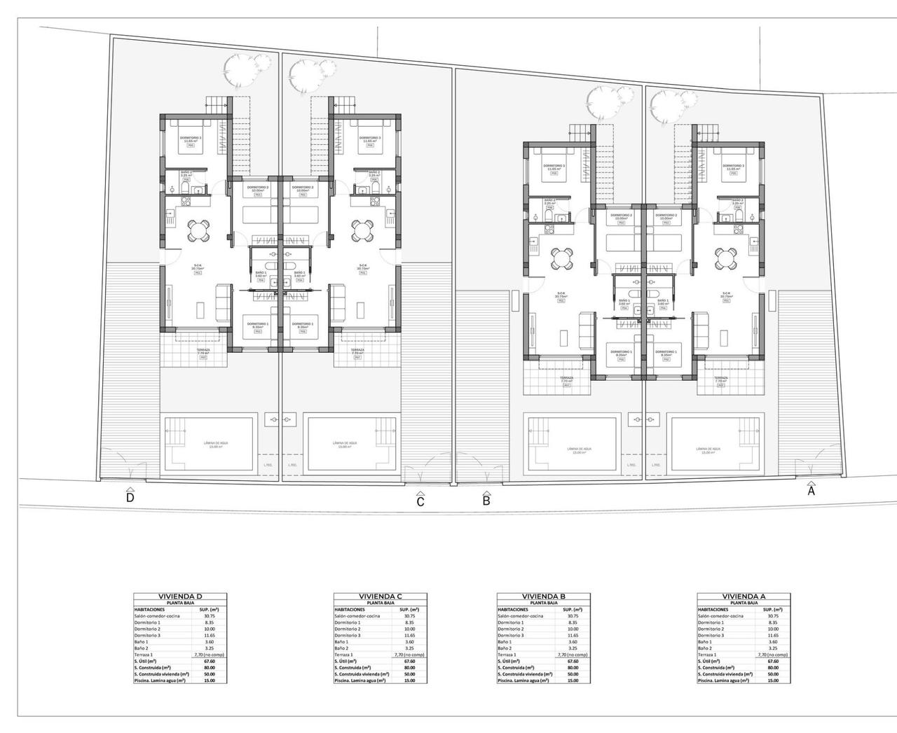
Belangrijkste kenmerken
- 3 slaapkamers
- 2 badkamers
- 80 m2 bewoonbare oppervlakte
- 200 m2 perceel
- Zwembad: Ja
Beschrijving
Nieuwbouwwoningen met privézwembad in Country Club Mazarron Moderne villa’s in een rustige woonomgeving Ontdek dit exclusieve nieuwe project van slechts vier halfvrijstaande villa’s in de Country Club-wijk van Mazarron, Murcia. Gelegen in een rustige woonomgeving, omgeven door natuur, biedt deze locatie de perfecte balans tussen rust en bereikbaarheid. De Country Club staat bekend om zijn ontspannen sfeer, brede straten en de nabijheid van zowel de kust als de stad Mazarron, waardoor het een aantrekkelijke optie is voor permanent wonen of vakantiegebruik. Ontwerp met één verdieping en privé buitenruimtes Elke villa is zorgvuldig ontworpen op één verdieping en biedt comfort en gemak. De indeling omvat drie ruime slaapkamers en twee badkamers, waarvan één en suite. De lichte open woonkamer combineert de lounge, eetkamer en keuken, met directe toegang tot het terras en de tuin. Grote ramen laten natuurlijk licht door het huis stromen en creëren een naadloze verbinding tussen binnen en buiten. De privétuin is voorzien van kunstgras voor weinig onderhoud, een privézwembad en een terras dat ideaal is om te zonnebaden of buiten te eten. Elke woning beschikt ook over een parkeerplaats op het perceel, wat gemak en veiligheid garandeert. Privé-solarium met vrij uitzicht Het privé-solarium op het dak is bereikbaar via een buitentrap en biedt een extra buitenruimte om het hele jaar door van het mediterrane klimaat te genieten. Het solarium is voorzien van water- en elektriciteitsaansluitingen, waardoor in de toekomst een zomerkeuken, buitendouche of chill-outruimte kan worden geïnstalleerd. Deze verhoogde ruimte is perfect om te ontspannen, gasten te ontvangen of te genieten van het vrije uitzicht op het omringende landschap. Hoogwaardige afwerking en modern comfort Deze nieuwbouwwilla’s zijn gebouwd met hoogwaardige materialen en moderne afwerkingen om duurzaamheid en comfort te garanderen. Ze zijn voorzien van inbouwkasten in alle slaapkamers, voorinstallatie voor airconditioning en voorinstallatie voor de keuken, waardoor kopers de mogelijkheid hebben om het interieur aan te passen aan hun persoonlijke stijl. Door het eigentijdse ontwerp en de praktische indeling zijn deze woningen geschikt als permanente woning, vakantiehuis of slimme investering. Gunstige ligging nabij Mazarron en de kust Het project ligt op ongeveer 9 km van de stranden van Mazarron en op slechts 5 km van de stad Mazarron, waar alle essentiële voorzieningen te vinden zijn, waaronder winkels, restaurants, medische centra en scholen. Het gebied profiteert ook van een goede verbinding met de snelweg, waardoor u gemakkelijk naar nabijgelegen steden kunt reizen. Belangrijkste afstanden tot bezienswaardigheden Stad Mazarron: 5 km Stranden van Mazarron en Bolnuevo: 9 km Jachthaven Puerto de Mazarron: 14 km Golfbanen: 20 km Luchthaven Murcia Corvera: 45 km Stad Cartagena: 35 km Uw nieuwe thuis aan de Costa Calida Geniet van privacy, comfort en het buitenleven in een van deze exclusieve nieuwbouwwoningen in Country Club Mazarron. Neem vandaag nog contact met ons op voor meer informatie of om een bezichtiging te regelen en uw plek in deze aantrekkelijke woonwijk veilig te stellen.






