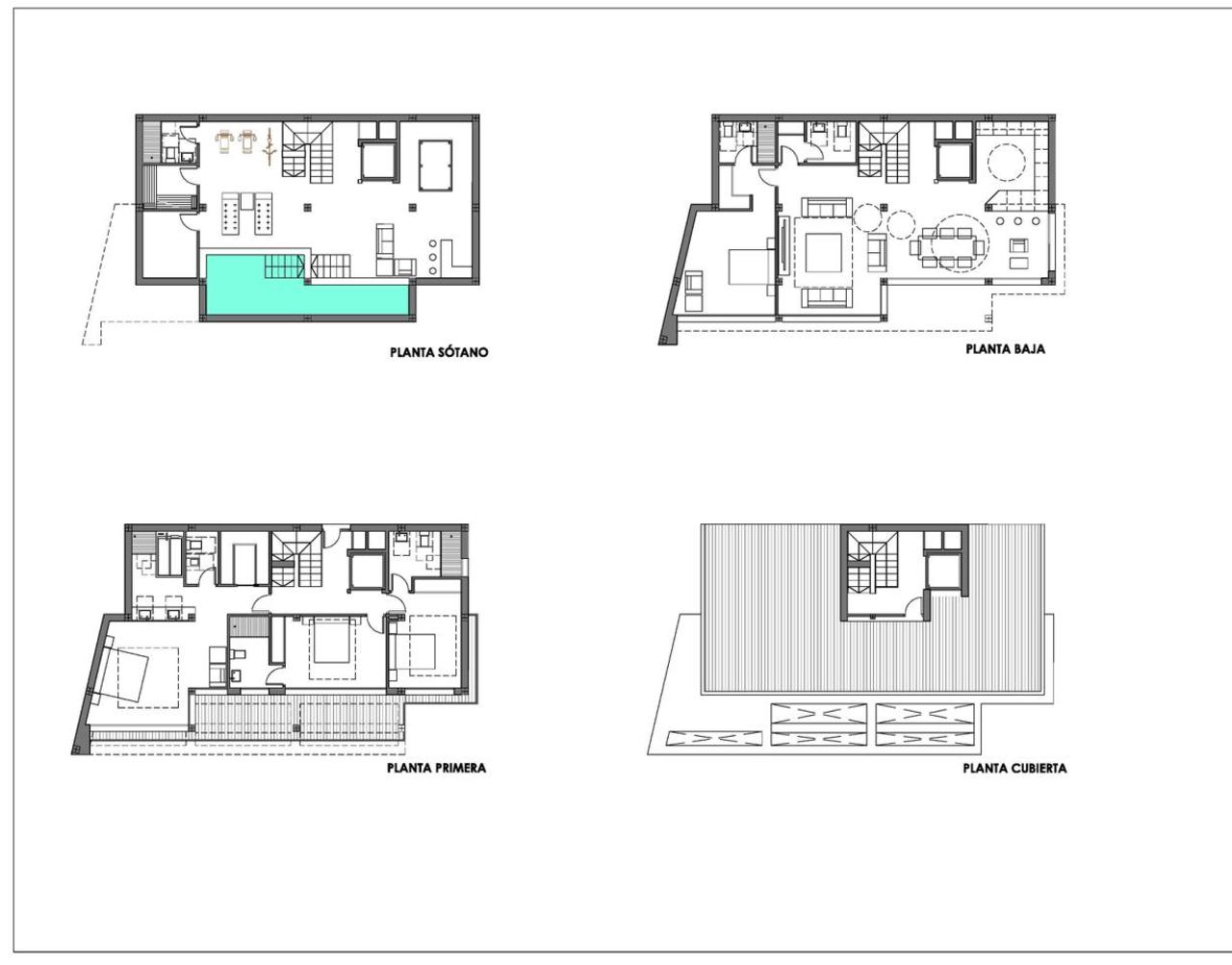
Belangrijkste kenmerken
- 4 slaapkamers
- 6 badkamers
- 410 m2 bewoonbare oppervlakte
- 660 m2 perceel
- Zwembad: Ja
Beschrijving
LUXE VILLA MET UITZICHT OP ZEE Moderne vrijstaande luxe villa met prachtig uitzicht op zee. De woning heeft een lift die de 3 verdiepingen van het huis verbindt. Vanuit alle slaapkamers en vanuit de woonkamer kunt u genieten van een spectaculair uitzicht op zee. In het overloopzwembad kunt u een ontspannend bad nemen terwijl u voelt hoe u samensmelt met de horizon, de Middellandse Zee en zijn blauwe hemel. De urbanisatie ligt op minder dan 2 km van het strand en het centrum van Calpe, met alle noodzakelijke voorzieningen. De luchthaven van Alicante ligt op 70 km afstand en Benidorm met zijn ruime keuze aan vrijetijdsactiviteiten ligt op slechts 20 km afstand. Vanuit Calpe heeft u toegang tot een breed scala aan golfbanen, internationale scholen, jachthavens en watersporten, gevarieerde gastronomie en dit alles in een klimaat met 300 dagen zon per jaar en een gemiddelde jaartemperatuur van 20ºC.










