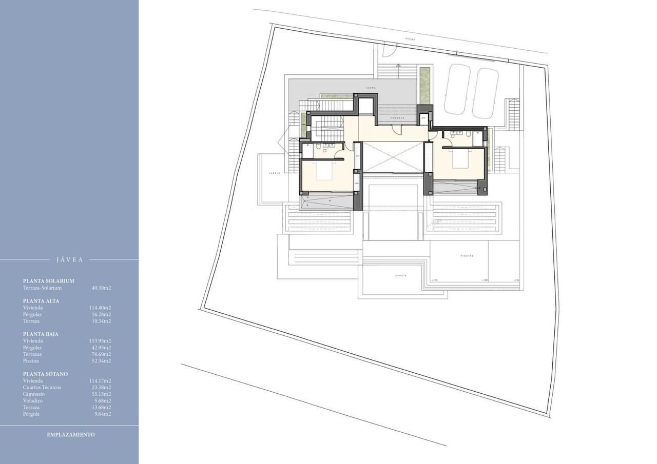
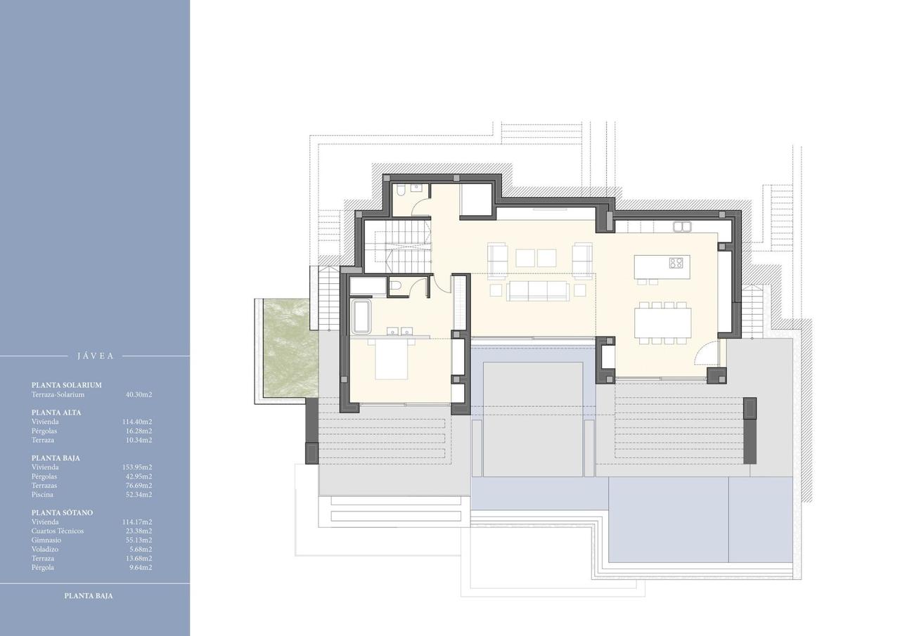
Belangrijkste kenmerken
- 4 slaapkamers
- 5 badkamers
- 461 m2 bewoonbare oppervlakte
- 925 m2 perceel
- Zwembad: Ja
Beschrijving
Luxe nieuwbouwwilla met zeezicht nabij het strand van Granadella in Jávea Exclusieve villa in de prestigieuze wijk Granadella in Jávea Ontdek een uitzonderlijke luxe villa die momenteel in aanbouw is in de zeer gewilde wijk Granadella in Jávea, aan de noordelijke Costa Blanca. Gelegen in een rustige, natuurlijke omgeving naast het beschermde bospark en op korte afstand van de beroemde Cala Granadella, biedt deze woning een zeldzame combinatie van privacy, spectaculair uitzicht op zee en de nabijheid van een van de mooiste baaien van Spanje. Javea staat bekend om zijn prachtige kustlijn, charmante oude binnenstad en uitstekende klimaat het hele jaar door. De stad biedt een bruisende levensstijl met internationale restaurants, jachthavens, golfbanen en een breed scala aan buitenactiviteiten. De mix van mediterrane charme en moderne voorzieningen maakt het tot een van de meest gewilde bestemmingen aan de Costa Blanca, zowel voor permanente bewoning als voor luxe vakantiehuizen. Moderne architectuur met ruime woonruimtes Deze elegante designvilla staat op een royaal perceel van 925 m² en biedt een indrukwekkende bebouwde oppervlakte van ongeveer 677 m², verdeeld over drie verdiepingen. De eigentijdse architectuur gaat naadloos op in het omringende natuurlijke landschap en benut het natuurlijke licht en het panoramische uitzicht optimaal. De woning beschikt over vier ruime slaapkamers, vijf badkamers en een gastentoilet. Grote open woonruimtes sluiten naadloos aan op de buitenterrassen, waardoor een lichte en comfortabele leefomgeving ontstaat die is ontworpen voor het moderne mediterrane leven. De villa beschikt tevens over een privékantoor, een volledig uitgeruste fitnessruimte, bergingen en een overdekte parkeerplaats voor twee auto’s. Een lift verbindt de verschillende verdiepingen van de woning voor maximaal gemak en toegankelijkheid. Panoramisch uitzicht op zee en buitenleven Een van de meest indrukwekkende kenmerken van het pand is de buitenruimte. De villa beschikt over ongeveer 140 m² aan open terrassen die een spectaculair uitzicht bieden op de Middellandse Zee en de omliggende bergen. Het infinity-zwembad kijkt uit over de kustlijn en het nabijgelegen strand van Granadella, waardoor een unieke omgeving ontstaat om te ontspannen en te genieten van de natuurlijke schoonheid van de omgeving. De aangelegde tuin met bomen en een automatisch irrigatiesysteem versterkt de rustige sfeer van het pand nog verder. Hoogwaardige afwerking en smart home-technologie De villa is gebouwd met hoogwaardige materialen en de nieuwste bouwtechnologieën om comfort, veiligheid en energie-efficiëntie te garanderen. Infinity-zwembad met uitzicht op zee Lift die alle verdiepingen met elkaar verbindt Designkeuken uitgerust met NEFF-apparatuur Vloerverwarming door het hele pand Luchtkanalensysteem met onafhankelijke AIRZONE-thermostaten NIESSEN Free Home domoticasysteem voor de bediening van verlichting en zonwering Gemotoriseerde zonwering in de hele villa Video-intercom en voorinstallatie voor alarmsysteem Aangelegde tuin met irrigatiesysteem Deze voorzieningen zorgen voor een moderne, comfortabele en veilige omgeving, ontworpen voor een luxe levensstijl. Toplocatie dicht bij stranden en voorzieningen Cala Granadella 0,3 km Arenal-strand 7 km La Sella Golf 18 km Denia 20 km Luchthaven Alicante-Elche 100 km Luchthaven Valencia 120 km Verzeker uzelf van uw luxe villa in Jávea Deze uitzonderlijke villa biedt een eigentijds ontwerp, adembenemend uitzicht op zee en een toplocatie nabij een van de mooiste stranden aan de Costa Blanca. Neem vandaag nog contact met ons op voor meer informatie of om een privébezichtiging te regelen en ontdek uw toekomstige luxe woning in Jávea. 1023













