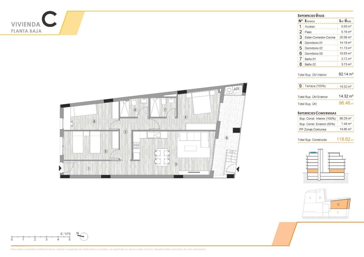
Belangrijkste kenmerken
- 3 slaapkamers
- 2 badkamers
- 96 m2 bewoonbare oppervlakte
- 0 m2 perceel
- Zwembad: Ja
Beschrijving
Nieuwbouwappartementen in het hart van Torrevieja Op slechts 400 m van Playa del Cura Toplocatie in het centrum van Torrevieja Dit nieuwe woongebouw ligt op een onovertroffen locatie in het centrum van Torrevieja, op slechts 400 m van Playa del Cura. Omringd door winkels, supermarkten, restaurants en dagelijkse voorzieningen, biedt het alles wat u nodig heeft op loopafstand. De omgeving biedt ook toegang tot parken, recreatiegebieden en groene zones, waardoor een perfecte balans ontstaat tussen stedelijk gemak en momenten van ontspanning. Moderne woningen met 2 en 3 slaapkamers Het project biedt een selectie van appartementen met 2 en 3 slaapkamers, waaronder penthouses, waarvan sommige met een eigen solarium. Elke woning is ontworpen in een eigentijdse stijl, met een open indeling, grote terrassen en geïntegreerde Amerikaanse keukens. De badkamers zijn volledig uitgerust met meubilair, doucheschermen en vloerverwarming. De keukens zijn voorzien van apparatuur en elk appartement heeft een voorinstallatie voor airconditioning. Er zijn optionele ondergrondse parkeerplaatsen en opslagruimtes beschikbaar. Resortachtige faciliteiten voor welzijn Bewoners kunnen genieten van een scala aan exclusieve voorzieningen. Op de begane grond bevindt zich een volledig uitgeruste fitnessruimte, ideaal voor dagelijkse trainingen. Het solarium op het dak biedt een ware oase van ontspanning met ligbedden, een Finse sauna en een minizwembad. Zowel de lift als de trap verbinden rechtstreeks met het dak voor maximaal gemak en toegankelijkheid. Wonen in een unieke natuurlijke en kustomgeving Torrevieja staat bekend om zijn warme mediterrane klimaat, met een gemiddelde jaartemperatuur van 20 ºC, waardoor het een perfecte plek is om het hele jaar door te wonen. De stad is beroemd om zijn natuurlijke zoutlagunes en het beschermde natuurpark La Mata en Torrevieja, op slechts 4 km van het project. De roze en groene meren, schilderachtige wandelroutes en rijke biodiversiteit bieden een gezonde en inspirerende levensstijl. Afstanden tot belangrijke bezienswaardigheden Playa del Cura 0,4 km Jachthaven van Torrevieja 1 km Natuurpark La Mata 4 km Villamartin Golf 8 km Luchthaven van Alicante 45 km Luchthaven van Murcia 60 km Ervaar de mediterrane levensstijl Mis deze kans niet om een moderne woning te kopen in een van de meest gewilde kustplaatsen van de Costa Blanca. Neem vandaag nog contact met ons op om een bezichtiging te regelen en uw plek in dit uitzonderlijke nieuwe project veilig te stellen.











