Belangrijkste kenmerken
- 3 slaapkamers
- 2 badkamers
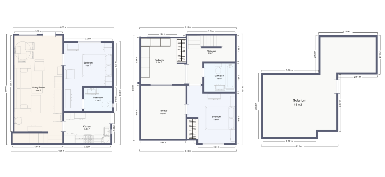
- 86 m2 bewoonbare oppervlakte
- 0 m2 perceel
- Zwembad: Neen
Beschrijving
Deze tussenwoning van 86 m² is te koop in El Mojón, een van de rustigste kustgebieden van Pilar de la Horadada, op slechts 300 meter van zee, dichtbij stranden, boulevard en parken, en omgeven door supermarkten, restaurants en sportfaciliteiten.De woning is verdeeld over twee verdiepingen:Begane grond: ruime woon-/eetkamer van 22 m², ideaal voor gezinnen; aparte keuken met apparatuur; slaapkamer op deze verdieping; volledige badkamer; en een berging voor fietsen of strandspullen. Voorterras om van het buitenleven te genieten.Eerste verdieping: twee lichte slaapkamers met ingebouwde kasten, badkamer en privéterras.Op het dak een privé dakterras/solarium, perfect om te zonnen of te ontspannen.Dankzij de uitstekende ligging is deze woning ideaal als vaste woning of vakantiehuis aan de Costa Blanca Zuid.





























