Belangrijkste kenmerken
- 2 slaapkamers
- 2 badkamers
- 77 m2 bewoonbare oppervlakte
- 0 m2 perceel
- Zwembad: Neen
Beschrijving
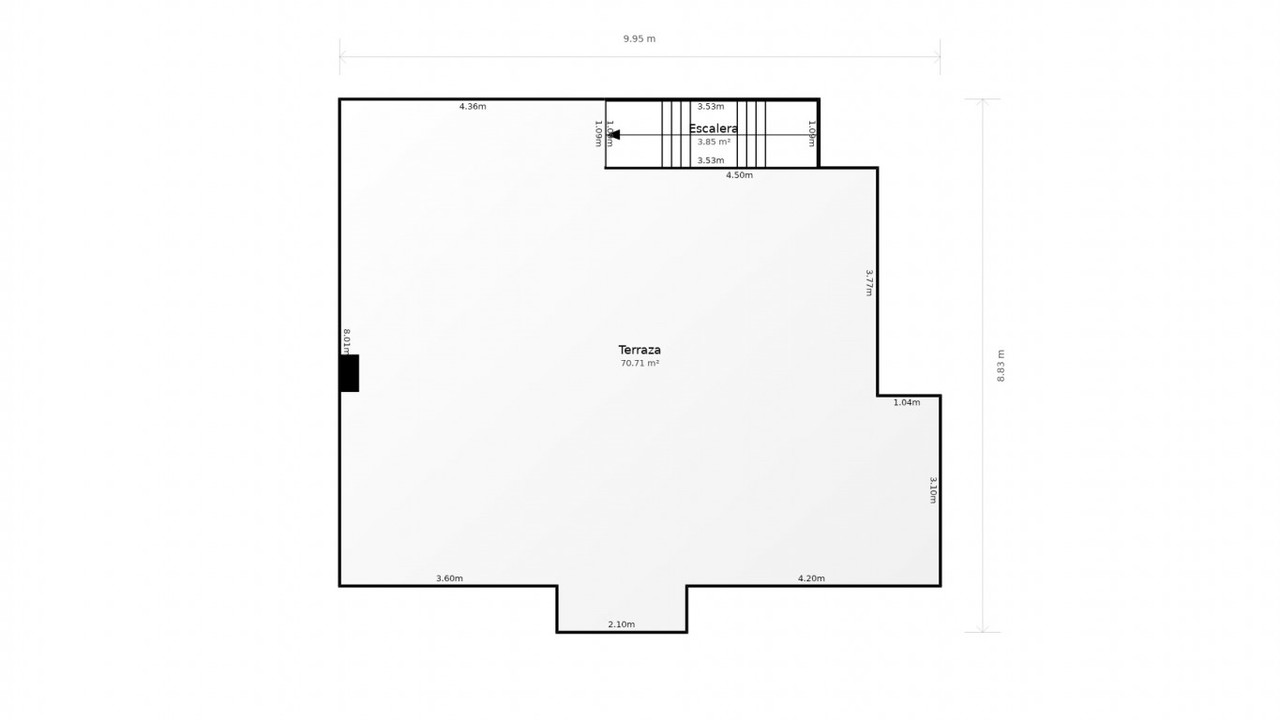
Wij presenteren dit uitzonderlijke hoekpenthouse in San Miguel de Salinas: een modern, uniek ontworpen huis, gebouwd in 2024, met een prachtig uitzicht en een uitstekend buitenleven.Ideaal gelegen, dicht bij alle voorzieningen , valt dit penthouse direct op dankzij de unieke indeling , die zich onderscheidt van alle andere penthouses in de ontwikkeling. Het interieur is licht en uitnodigend, met de hele dag door veel natuurlijk licht dankzij de hoekligging en grote ramen.Binnen beschikt de woning over een op maat ontworpen keuken en schuifdeuren in plaats van standaarddeuren , wat de woning een elegante, open en moderne uitstraling geeft. De woonkamer sluit prachtig aan op de buitenruimtes, waardoor deze ideaal is voor zowel dagelijks gebruik als voor het ontvangen van gasten.Een van de belangrijkste hoogtepunten is het indrukwekkende privé-dakterras , volledig uitgerust voor optimaal buitenplezier. Het beschikt over een buitenkeuken , pergola en zelfs een douche , waardoor het de perfecte plek is om te ontspannen, dineren of van de zon te genieten terwijl u geniet van het panoramische uitzicht over het zoutmeer van Torrevieja en het park ervoor .De gemeenschap biedt uitstekende gedeelde faciliteiten, waaronder een groot zwembad en een kinderspeelplaats , ideaal voor gezinnen of mensen die van een resort-achtig leven houden. Het penthouse is tevens voorzien van airconditioning , wat het hele jaar door comfort garandeert.Dit is een unieke kans om eigenaar te worden van een hoogwaardig, uniek ontworpen penthouse met uitzonderlijke buitenvoorzieningen en een van de mooiste uitzichten in de omgeving.





































