Belangrijkste kenmerken
- 2 slaapkamers
- 2 badkamers
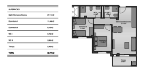
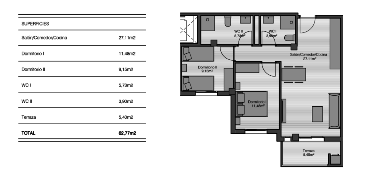
- 57 m2 bewoonbare oppervlakte
- 63 m2 perceel
- Zwembad: Gemeenschappelijk
Beschrijving
Dit prachtig 2-slaapkamer appartement met zonnig terras op de tweede verdieping, is gelegen in de gegeerde woonwijk van San Miguel de Salinas, op wandelafstand van alle lokale bars, supermarkten en restaurants.
De woning wordt volledig gemeubileerd verkocht en bestaat uit een lichte woon-/eetkamer, een volledig uitgeruste open keuken, twee slaapkamers met inbouwkasten, twee badkamers met vloerverwarming en een zonnig zuidgericht terras. Een berging en een parkeerplaats in de ondergrondse garage zijn eveneens inbegrepen in de prijs.
Er is een prachtige gemeenschappelijke tuin met zwembad om het hele jaar door van het Spaanse weer te genieten!
Vlakbij alle voorzieningen en diverse recreatiegebieden in de buurt, zoals prachtige golfbanen en vele winkelcentra, en op slechts 10 minuten van het ongerepte witte zandstrand van Orihuela Costa/Torrevieja en winkelcentrum La Zenia Boulevard.
Extra Kenmerken
- Airconditioning: Ja
- Bemeubeld: Ja
- Tuin: Ja
- Lift: Ja
- Oriëntatie: Zuid
- Berging: Ja
- Terras: Ja
- Uitzicht: Tuin
- Parking: Ja
Faciliteiten
- Luchthaven: 60 km
- Cafés En Restaurants: 2 minutes
- Strand: 7 km
- Golf: 5 minutes
- Winkelcentrum: 2 minutes
- Supermarkt: 2 minutes



























