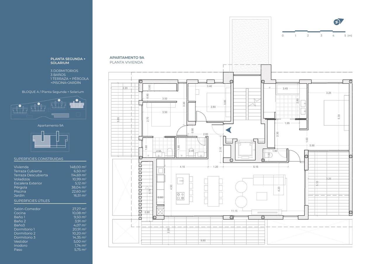
Belangrijkste kenmerken
- 3 slaapkamers
- 2 badkamers
- 152 m2 bewoonbare oppervlakte
- 0 m2 perceel
- Zwembad: Ja
Beschrijving
NIEUWBOUW WOONCOMPLEX IN LA NUCIA Nieuwbouw wooncomplex met appartementen en penthouses met gemeenschappelijk buitenzwembad, parkeerplaats, berging, lift, fitnessruimte, gemeenschappelijke spa met verwarmd binnenzwembad, sauna, jacuzzi in La Nucia. Moderne woningen met 2 en 3 slaapkamers, allemaal met 2 badkamers, open keuken met ruime woonkamer, inbouwkasten, terras, ondergrondse parkeerplaats. Penthouses hebben privé solariums met het zwembad. Uitmuntendheid in haar avant-garde architectuur, prachtige afwerking en high-end diensten, een droom urbanisatie voor diegenen die op zoek zijn naar het hoogste niveau van comfort en distinctie. Interieurs die elegant design en moderne verfijning combineren, creëren ruimtes die van elke dag een uitzonderlijke ervaring van comfort en welzijn maken. Duitse designkeuken, Burger of gelijkwaardig, met Silestone werkblad, volledig uitgerust. Siemens apparatuur of vergelijkbaar. Inductiekookplaat, afzuigkap, oven en koelkast en vaatwasser geïntegreerd in de eenheden. Verstevigde toegangsdeur tot het pand met veiligheidsslot, afgewerkt met gelakte lambrisering die past bij het interieur. Optioneel slot met afstandsbediening vanaf smartphone of tablet. Modulaire garderobekasten met draai- of schuifdeuren, gelakt in dezelfde kleur als de rest van het interieur, inclusief kofferruimte, lades en ophangrail. De woning wordt voorbereid om snel internet te kunnen contracteren. Er komt elektrische vloerverwarming met laag verbruik in de badkamers. De video-intercom is elektronisch met kleurenbeeld en heeft een geïntegreerde afstandsbediening vanaf telefoon of tablet. Samsung airconditioning. Elke kamer heeft zijn eigen interieurmachine en onafhankelijke bediening. De airconditioning heeft een afstandsbediening. Deze kan worden bediend vanaf een telefoon of tablet. De volledige installatie van het airconditioningsysteem zal worden uitgevoerd, uitgerust met een warmtepomp om zowel te koelen als te verwarmen. Er worden ook kanalen van glasvezel gebruikt. De binnenunits worden in het verlaagde plafond in de badkamers en de gang geplaatst, terwijl de buitenunit in de toegewezen ruimte van het project wordt geïnstalleerd. Ventilatie. Installatie van binnenluchtverversing in woningen met afzuigopeningen in badkamers en keuken en klok voor het programmeren van het tijdschema. Zwembad voor gemeenschappelijk gebruik met chloorzout en automatische controle van PH en chloor. In de kelder komt een fitnessruimte, verwarmd binnenzwembad, jacuzzi, sauna, stoombad, chromotherapie en kleedkamers met badkamers. Grote terrassen en tuinen met inheemse planten voor meervoudig gebruik in de gemeenschappelijke ruimte. De omtrek van het perceel zal worden beplant met planten die een privé-sfeer zullen creëren in de omheining als ze groeien. Er komt een videobewakingssysteem voor de gemeenschappelijke ruimtes. Gelegen op een bevoorrechte locatie, tussen Nucia en Altea, geniet deze residentie van een uitzonderlijke omgeving en uitstekende diensten binnen de urbanisatie.

























