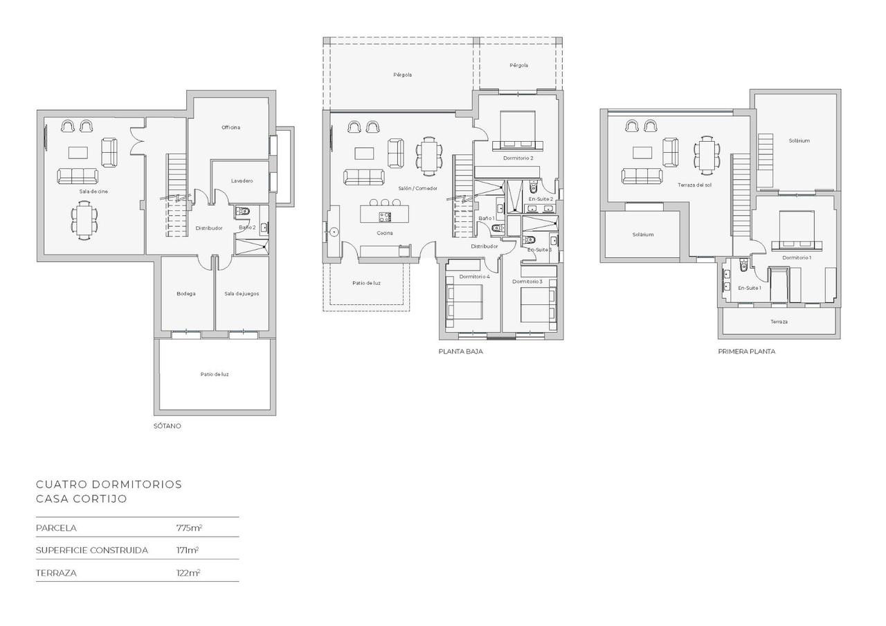
Belangrijkste kenmerken
- 4 slaapkamers
- 5 badkamers
- 171 m2 bewoonbare oppervlakte
- 775 m2 perceel
- Zwembad: Ja
Beschrijving
VERBLUFFENDE NIEUWBOUW VILLA’S IN DESERT SPRINGS RESORT Een beperkte selectie van luxe villa’s met vier slaapkamers aan de fairway die een prachtig uitzicht bieden over de kampioenschapsbaan Indiana en de bergketens daarachter. Privacy wordt geboden via een omheinde binnenplaats, privé parking en omheining. Een uitgebreide lounge op het dak en terrassen, diepe schaduwrijke veranda’s met een ingebouwde BBQ, een verzorgde privétuin met zwembad met uitzicht op de golfbaan, zorgen ervoor dat de buitenkant een overvloed aan mogelijkheden biedt om te genieten van de lange luie zomerdagen en glorieuze avonden vol sterren. Binnen zijn modern design en natuurlijk licht, met een algemeen gevoel van ruimte, de uitstekende kenmerken van een verfijnd interieur dat een stijlvolle woning met moderne uitstraling biedt. Kenmerken zijn een interne ontvangstruimte die uitkomt in een uitgebreide open woon/eetkamer en keuken met ‘level through’ vloer, op de overdekte veranda’s, de privé aangelegde tuin en het zwembad om een gecombineerde binnen/buiten woon en eetruimte te bieden, ontworpen om als één te worden gebruikt in het speciaal bevoorrechte klimaat van de regio. Op de eerste verdieping bevindt zich de hoofdslaapkamer met en-suite badkamer met directe toegang tot de uitgebreide lounge en het terras op het dak. Er zijn nog twee slaapkamers met en-suite badkamer op de begane grond, een met directe toegang tot de grote veranda en het zwembad, evenals een vierde slaapkamer met aparte badkamer. Beneden op de grote benedenverdieping bevinden zich een speelkamer, bioscoopzaal, wijnkelder, kantoor, bijkeuken en vijfde badkamer. Luxueuze afwerkingen omvatten aantrekkelijk betegelde badkamers, een open keuken met ‘Silestone’ werkbladen, met geïntegreerde apparatuur, keramische kookplaat en afzuigkap. Dubbele beglazing, spiegelkasten in de slaapkamers en sanitair van hoge kwaliteit van Roca of Porcelnosa. Een mechanisch ventilatiesysteem op de onderste, begane grond en eerste verdieping en fotovoltaïsche panelen aangesloten op de warm water cilinder met individueel regelbare warm / koud airconditioning units naar de woonkamer en slaapkamers, volledig voorzien in alle temperatuurregeling eisen. USB-poorten in alle kamers met snelle internetverbinding.













