Belangrijkste kenmerken
- 4 slaapkamers
- 3 badkamers
- 149 m2 bewoonbare oppervlakte
- 320 m2 perceel
- Zwembad: Neen
Beschrijving
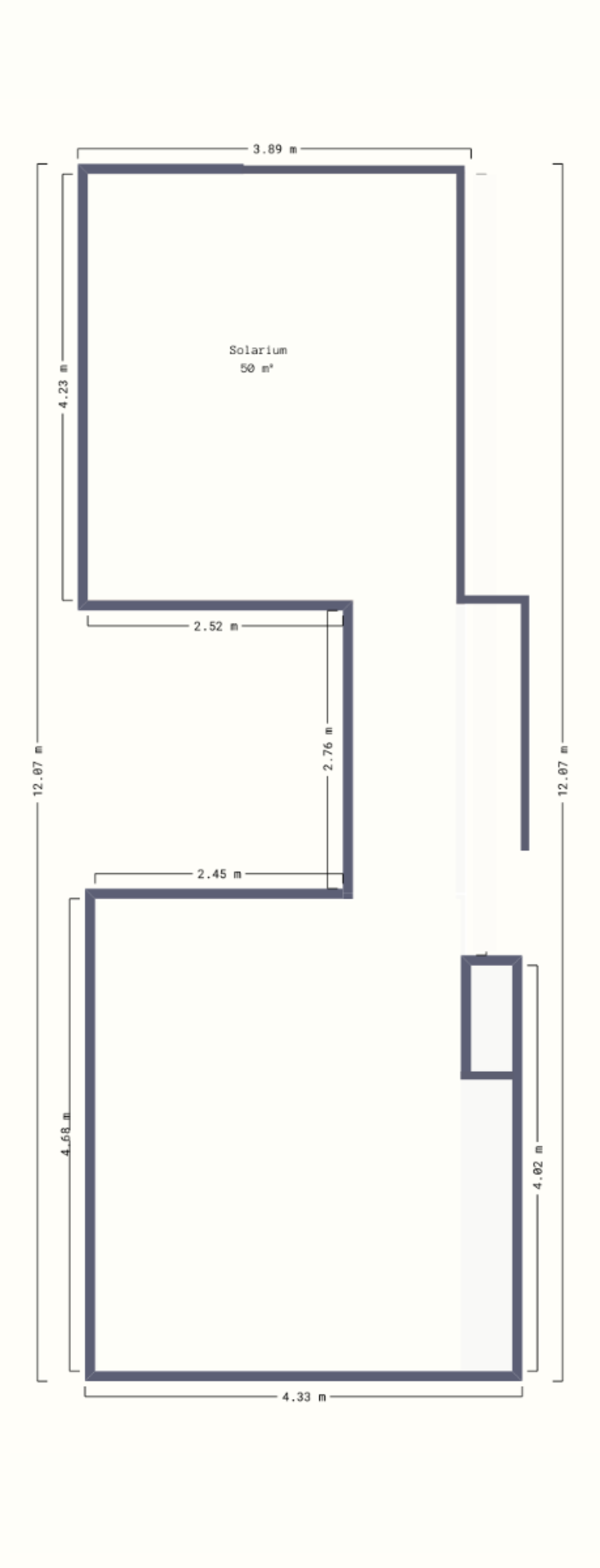
Moderne villa te koop in Villamartin, Orihuela Costa, gebouwd in 2019, bestaande uit 4 slaapkamers, 3 badkamers, een privézwembad, een solarium en zonnepanelen. Met een woonoppervlakte van 150 m² op een perceel van 320 m² biedt deze woning een ruime en elegante indeling over drie niveaus. Op de begane grond bevinden zich een slaapkamer en een badkamer met inloopdouche; Boven vindt u nog twee slaapkamers, een extra badkamer en toegang tot een zonnig terras en een eigen solarium. De kelder biedt extra veelzijdigheid met een vierde slaapkamer, een derde badkamer en een ruime leefruimte. Deze villa op het zuiden is vrijwel volledig gemeubileerd en beschikt over een bioklimatisch terras, een eigen parkeerplaats en een grote buitenruimte, ideaal om te ontspannen of gasten te ontvangen. Dankzij zonnepanelen, een batterijsysteem en een laadstation voor elektrische voertuigen is dit huis energiezuinig en ideaal voor milieuvriendelijk gebruik. Gelegen dichtbij golfbanen, stranden, internationale scholen en alle voorzieningen, is het ideaal als vaste verblijfplaats, vakantiehuis of verhuurinvestering aan de Costa Blanca. Mis deze kans niet! Neem vandaag nog contact met ons op om een bezichtiging te regelen!


































