Belangrijkste kenmerken
- 4 slaapkamers
- 3 badkamers
- 176 m2 bewoonbare oppervlakte
- 328 m2 perceel
- Zwembad: Privaat
Beschrijving
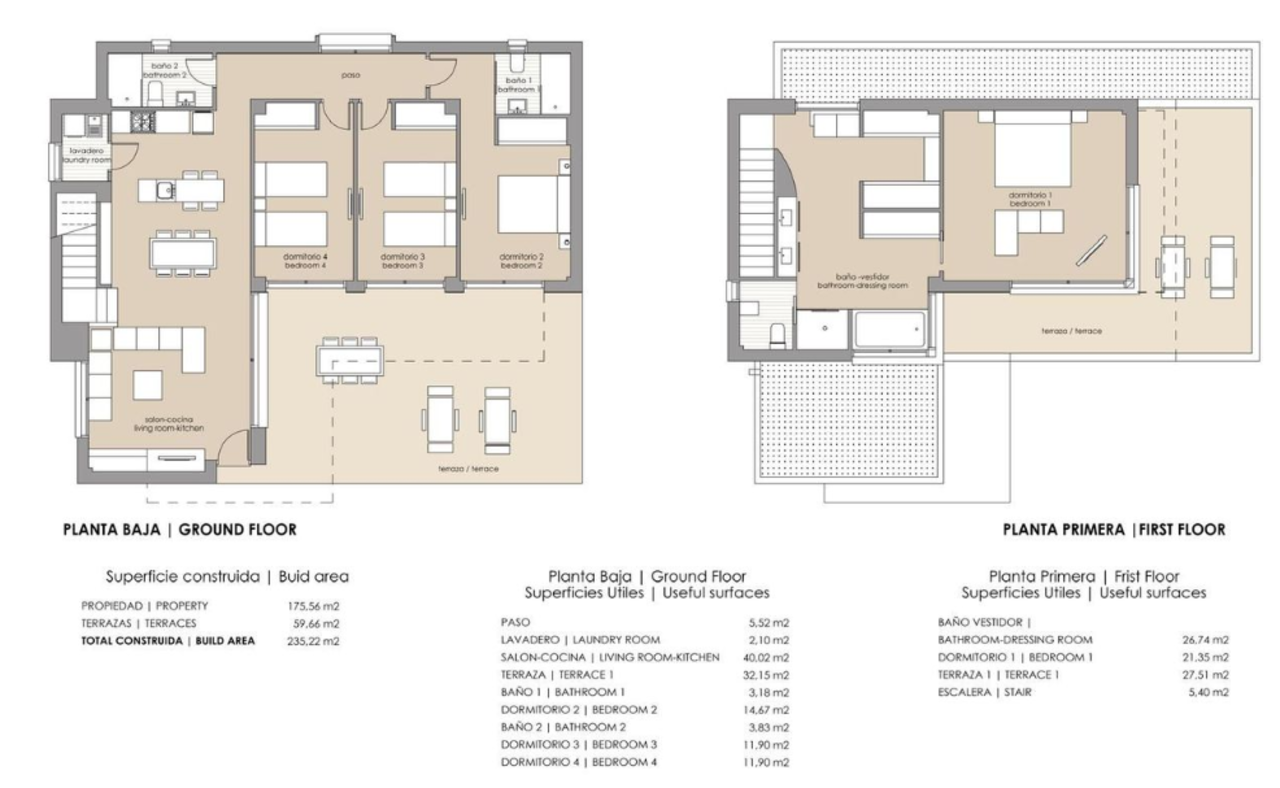
Deze gloednieuwe vrijstaande villa’s met 4 slaapkamers en 3 badkamers zijn gelegen aan de VistaBella golfbaan in Los Montesinos, Alicante, tussen San Miguel de Salinas en het Spaanse stadje Jacarilla.
De begane grond van deze woning bestaat uit een ruime woonkamer met hoge ramen die toegang verlenen naar de privé tuin met terras (60 m²) en zwembad, een moderne open keuken met kookeiland, een handige berging/wasruimte, drie tweepersoonsslaapkamers met inbouwkasten en twee badkamers.
De eerste verdieping bestaat uit een hoofdslaapkamer met kleedkamer, en-suite badkamer en toegang tot het privé zonneterras.
Deze villa’s bieden een fantastische prijs-kwaliteitverhouding en liggen op een geweldige locatie, omringd door prachtig landschap en de golfbaan. De supermarkt, bars en restaurants liggen op slechts een paar minuten lopen.
VistaBella Golf is een gevestigde wijk met een prachtig uitzicht rondom. De lokale winkels, bars en restaurants liggen op slechts een paar minuten lopen. Het prachtige strand van Guardamar ligt op slechts vijftien minuten rijden.
Extra Kenmerken
- Tuin: Ja
- Lift: Nee
- Oriëntatie: Zuid
- Positie: Vrijstaand
- Dakterras: Ja
- Berging: Ja
- Terras: Ja
- Uitzicht: Zwembad
- Parking: Ja
Faciliteiten
- Luchthaven: 40 km
- Cafés En Restaurants: 2 minutes
- Strand: 15 km
- Golf: 2 minutes
- Winkelcentrum: 2 minutes
- Supermarkt: 2 minutes






