Belangrijkste kenmerken
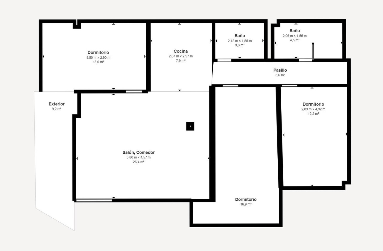
- 3 slaapkamers
- 2 badkamers
- 100 m2 bewoonbare oppervlakte
- 0 m2 perceel
- Zwembad: Neen
Beschrijving
Een zeldzame kans in Torrevieja – Acequion-gebiedWij nodigen u uit om een waar juweel te ontdekken in een van de meest gewilde wijken van Torrevieja: de prestigieuze wijk Acequion. Dit volledig gerenoveerde appartement combineert moderne elegantie, ultiem comfort en een droomlocatie.Vanaf het eerste moment zult u de verfijnde sfeer voelen, tot in de kleinste details ontworpen om warmte en gastvrijheid te bieden. De indeling omvat drie ruime slaapkamers, allemaal gevuld met natuurlijk licht, wat een gevoel van rust en comfort creëert. De hoofdslaapkamer beschikt over een bevoorrecht uitzicht op de Middellandse Zee, waardoor u elke ochtend onvergetelijk begint.De twee badkamers, met hun moderne ontwerp, zijn echte wellnessruimtes: hoogwaardige materialen, ruime douches en elegante afwerkingen maken elk gebruik tot een ontspannende ervaring.Het hart van de woning is de ruime, lichte woonkamer met open keuken, waar moderniteit en gezelligheid samenkomen. De keuken is volledig uitgerust met hoogwaardige apparatuur en ideaal om uw favoriete gerechten te bereiden terwijl u geniet van fijne momenten met familie en vrienden.Daarnaast beschikt de woning over een praktische berging en een balkon op het zuidoosten – een zonnig toevluchtsoord om te ontspannen. Hier kunt u genieten van een kop koffie bij zonsopkomst of een glas wijn bij zonsondergang, terwijl u uitkijkt over de prachtige Middellandse Zee.Dit appartement is ideaal, of u nu op zoek bent naar een permanente woning aan zee of een exclusief vakantieverblijf in een van de meest gewilde gebieden van de Costa Blanca. De functionele indeling, het zeezicht, de zuidoostelijke oriëntatie en de nabijheid van zowel het strand als het centrum van Torrevieja maken dit een unieke kans. Elk detail is zorgvuldig overwogen om uw dagelijks leven comfortabel en aangenaam te maken.Dit is niet zomaar een woning – het is een exclusieve levensstijl in een van de meest gewilde hoeken van de Middellandse Zee.











