Belangrijkste kenmerken
- 2 slaapkamers
- 1 badkamers
- 80 m2 bewoonbare oppervlakte
- 0 m2 perceel
- Zwembad: Neen
Beschrijving
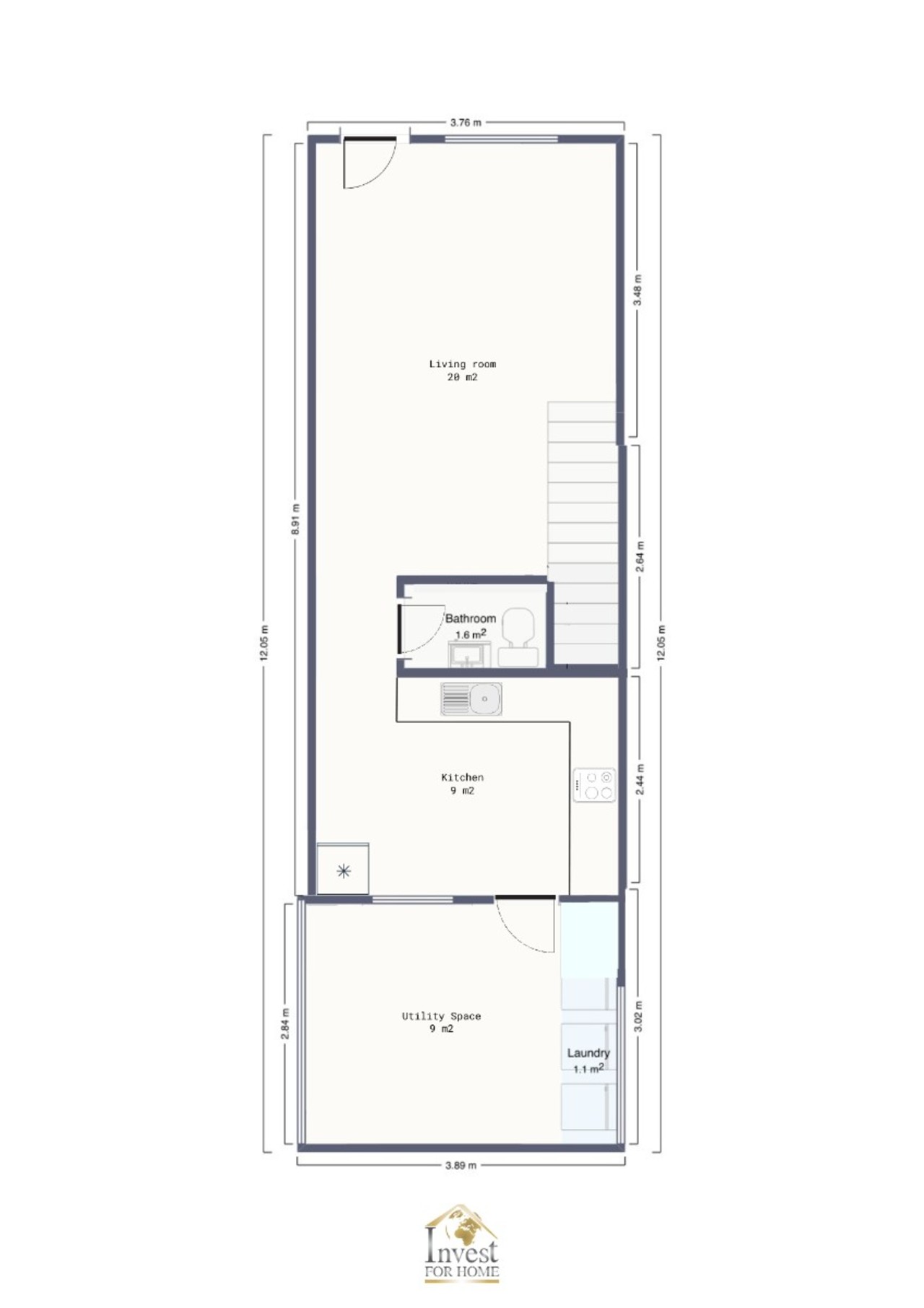
Dit volledig gerenoveerde en direct te betrekken huis ligt in een privé woonwijk met een gemeenschappelijk zwembad. Het heeft een ideale ligging, op slechts enkele minuten van het winkelcentrum Habaneras, het Quirón-ziekenhuis en het gemeentelijk sportcentrum. Het is ook gemakkelijk bereikbaar vanaf de nationale weg N-332. Het strand van La Mata ligt op slechts een paar minuten rijden en de luchthaven van Alicante ligt op ongeveer 35 tot 40 minuten rijden. Belangrijkste kenmerken: Huis gebouwd van 80 m² Grote woonkamer van 20 m² met airconditioning Zuidwest gericht, zeer licht 2 slaapkamers (de hoofdslaapkamer met airconditioning en op maat gemaakte kleedkamer) 1 complete en moderne badkamer 1 toilet op de begane grond, beide gerenoveerd Nieuwe keuken, een jaar geleden geïnstalleerd Keramische tegelvloer met vinylbedekking recente verf in het hele huis Overdekt achterterras, ideaal als wasruimte of berging Privé solarium, ideaal om het hele jaar door van de zon te genieten Omheinde residentie met gedeeld zwembad Gebouwd in 2001 en volledig gerenoveerd Ideaal als primaire woning, vakantiehuis of verhuurinvestering. Geniet er vanaf dag één van.
 
        
    



















